Mallacoota’s Community Health Infrastructure and Resilience Fund (CHIRF) is thrilled to announce that its application to the Australian Government’s $200 million Play Our Way program has been successful.
The Play Our Way program funds local initiatives and ideas to overcome barriers that women and girls face in participating in sport. Funded activities will:
- provide safe, inclusive, quality and sustainable facilities, equipment and initiatives
- help women and girls to stay involved in sport and physical activity for life.
The program funds activities under 2 streams:
- Stream 1: Facilities – to support new and upgraded facilities, playing areas, and spaces for sport and physical activity, specifically for women and girls.
- Stream 2: Participation and equipment – to support sustainable and enduring sport participation programs and/or new or upgraded equipment, specifically for women and girls.
CHIRF’s project has been successful under the Facilities Stream.
About the Initiative
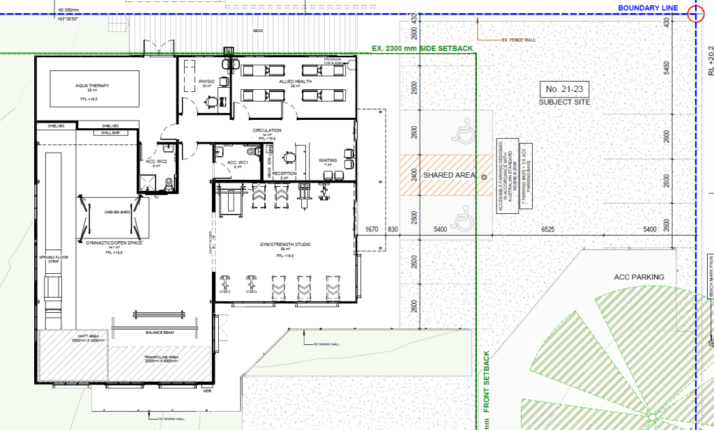
The grant will be used to deliver the Mallacoota Wellbeing and Recreation Centre, a new, community-owned health, sport and wellbeing facility delivered by CHIRF in conjunction with Mallacoota Inlet Aged Care (MIAC), who own the land on which the Centre will be built.

The Centre will ensure women and girls in Mallacoota, Genoa and Gipsy Point can easily access and enjoy being active and healthy, regardless of age or life stage. Mallacoota’s rural and remote location, combined with a lack of purpose-built facilities, has historically limited opportunities for participation in sport and physical activity. This project directly addresses those barriers and ensures that postcode does not limit access to safe, inclusive facilities.
While designed as an inclusive space for the whole community, special consideration has been given to ensuring women and girls feel welcome, safe and confident using the facility.
The Mallacoota Wellbeing and Recreation Centre will include:
- A community gym with inclusive equipment suitable for all ages and abilities
- Group programs including Reformer Pilates, Strength and Balance and Cardio Rehabilitation
- A gymnastics and judo facility, enabling the re-establishment of gymnastics and improved judo participation
- Flexible space for dance, yoga, Tai Chi and online classes, supporting participation despite geographic isolation
- Allied health consulting rooms
- Provisions for an indoor Aqua Therapy pool
- Safety-focused design features including secure after-hours access and 24-hour surveillance

Next Steps
Work on the Mallacoota Wellbeing and Recreation Centre is expected to commence in the first quarter of 2026. The project will contribute to a growing health and wellbeing precinct located alongside the Mallacoota Medical Centre, supporting long-term community health, resilience and participation in physical activity.
Successful projects across both streams of Play Our Way will maximise opportunities for women and girls to access, participate in and remain involved in sport and physical activity, and this project represents a significant investment in those outcomes for Far East Gippsland.
Further Information
Further information about the Play Our Way program is available at:
https://www.health.gov.au/our-work/play-our-way-program
For more information about the Mallacoota Wellbeing and Recreation Centre, please contact:
manager@mallacootacares.com.au